
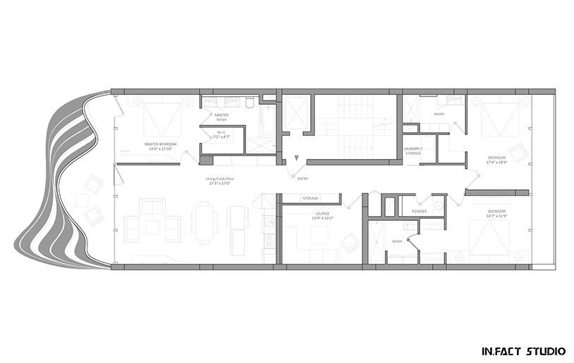
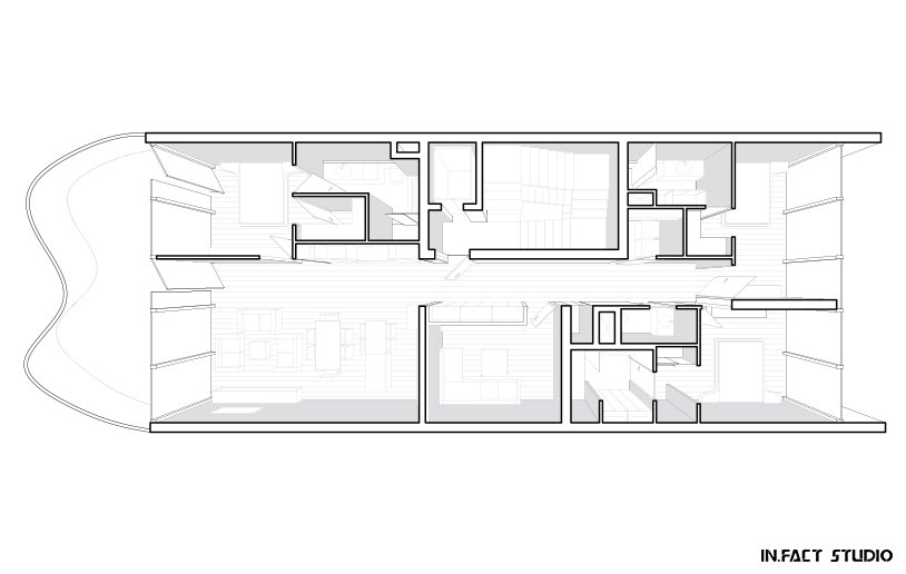
ساختمان ساخته شده توسط استوديوي Infact با نمايي منحني فضاي جديدي را در دهلي نو ايجاد کرده است.
به گزارش گالري آنلاين، اين ساختمان با توجه به پارامترهاي ثابت طرح هاي طبقه بندي طراحي شده و با نمايي کار شده است که مي تواند از محيط اطرافش برجسته شود. نماي بتن سبک وزن به شرايط آب و هوايي گرم پاسخ مي دهد و از ورود گرماي خورشيد به خانه با ارائه سايه هاي عميق و نور غير مستقيم در فضاي داخلي، جلوگيري ميکند.





