
استوديوي معماري 314 برج مسکوني مجسمه گونه اي را که توسط نورپردازي خاص خود، جلوه ي ويژه اي پيدا کرده است، در جنوب آتن طراحي و اجرا کرده است.
به گزارش گالري آنلاين، اين بنا با استفاده از سنگ مرمر و ساختار پويا با ديوارهاي منحني و دهانه هاي نامنظم ساخته شده است.
سنگ مرمر سفيد، شکل و شرايط نور را تحت تاثير قرار مي دهد. ساختمان داراي 460 مترمربع مساحت است که به پنج آپارتمان تقسيم مي شود و همه آنها مجهز به حريم خصوصي کافي و مناظر شگفت انگيز هستند.







ground floor plan

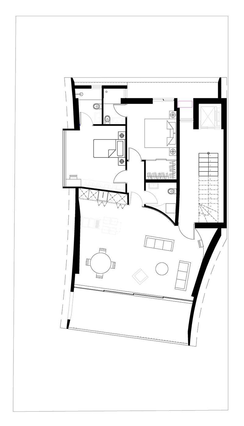
typical floor plan

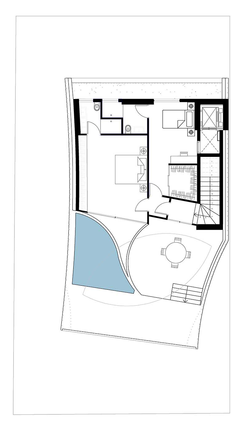
loft plan

