
يک خانه چوبي با ارتفاع زياد در سطح مقطعي کم که با الگوي مارپيچي در وسط جنگل طراحي شده تا براي مالک خود عمق سکوت و آرامش را به ارمغان بياورد.
به گزارش گالري آنلاين به نقل از آرل، انظمام و يکپارچگي بين درون و بيرون کلبه، جزء جدي ترين ترکيبات پروژه به شمار مي رود که معمار را درصدد انتقال حسي آشنا از فضايي طبيعي داشته است. شايد موضوع انتقال حس به واسطه ترکيبات هندسي و کانسپت طراحي فراتر از انتخاب متريال و رنگ پروژه بود.
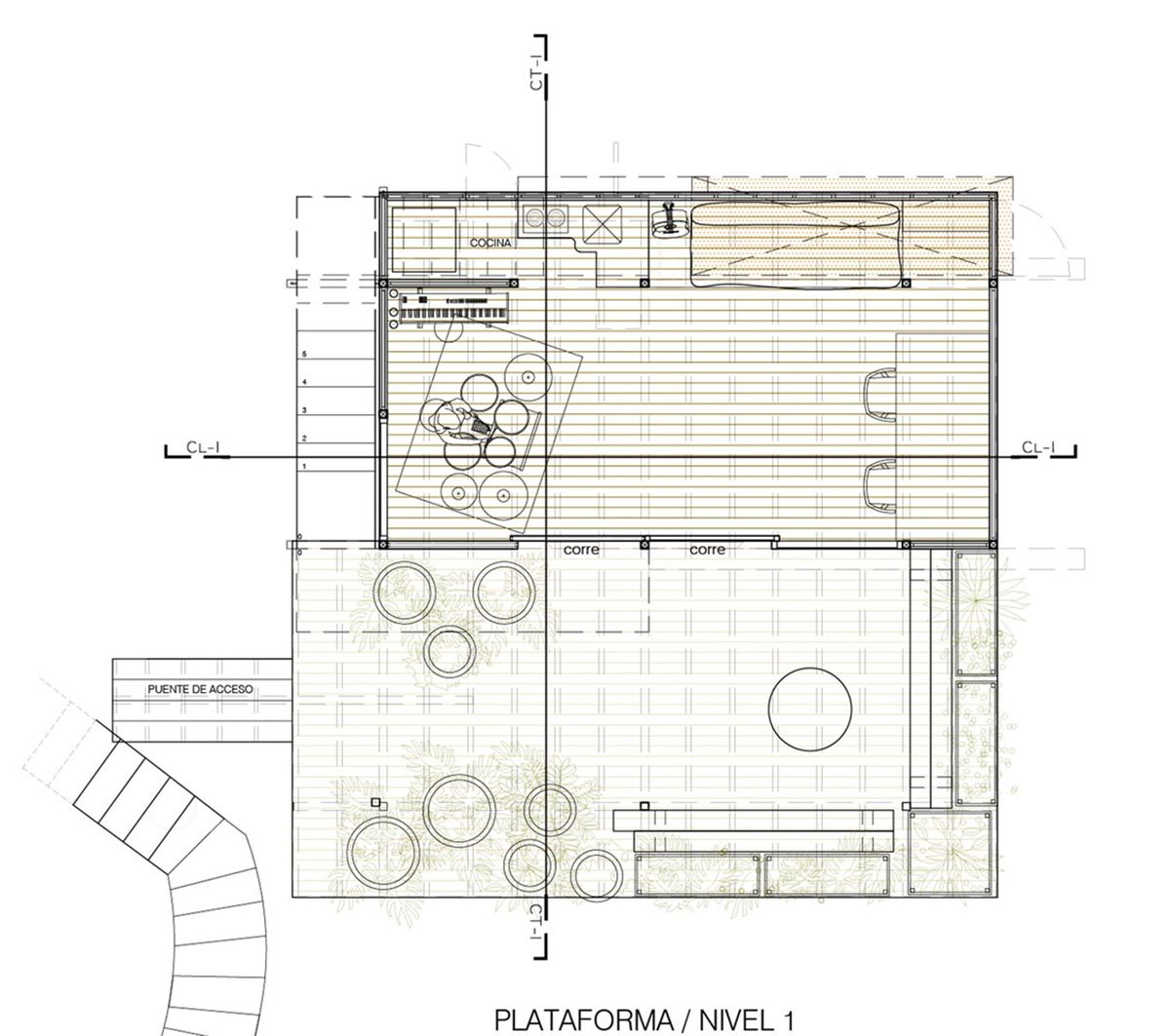
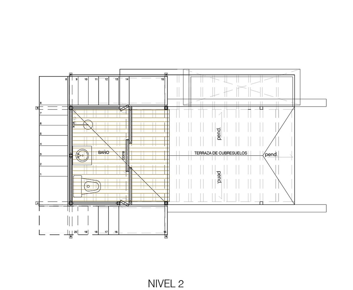
ترکيب ساختار شفاف و صلب ديوارها با توجه به عرصه بندي و طراحي پلان خانه نصب شده، و اين ديوارها هستند که تصميم مي گيرند شما کدام منظره اطراف را مي توانيد ذره ذره مزه کنيد. شايد عجيب باشد که مفهوم طراحي يک خانه باريک و بلند را بر اساس فرم ريشه دواني درختان جنگل هاي مکزيکوسيتي انتخاب کنند. حجم مرتفع کلبه چوبي مانند ريشه هاي درختان اطراف توسط 9 ستون چوبي بلند پشتيباني مي شود.
در نگاه اول ساخت يک کلبه بلند که داراي متراژ کمي در طبقات مي باشد، منطقي نيست، اما اين جنگل يک فضاي سبز طبيعي معمولي نيست. مرتفع بودن ساختمان يک ضرورت بود تا کاربران حداکثر بهره وري از زيبايي و مناظر جنگل مکزيکوسيتي را داشته باشند. کلبه "کاسا فلوانته" پروژه هاي فراتر از يک ويلاي کوچک چوبي در قلب جنگل است، بلکه پلي بين طبيعت و انسان است که درختان و پوشش گياهي را به درون خانه پيوند مي زند.
پروژه ويلاي چوبي جنگلي، بر حسب سلوک و مَنش بين انسان و طبيعت طراحي و اجرا شده است. خانه داراي متريال بوم آورد و طبيعي است تا کمترين فشار يا تخريب به محيط وارد شود، در عوض به شما منظره و آرامشي وصف ناشدني تزريق مي کند. نتيجه نهايي چنين پروژه اي در چند واژه گنجيده است: زيبايي، آرامش و احترام به طبيعت.
کليد اصلي طراحي کلبه هم سه واژه است: سادگي، شفافيت و لمس زندگي. اما اگر بخواهيم سواي تعاريف بالا صحبت کنيم، پلکان مارپيچي کلبه که مانند مار دور ساختمان پيچيده، فراتر از تعارف جامع مي رود. زيبايي و جسارت قرار دادن دسترسي از بيرون پوسته ساختمان براي تغيير حس و حال کاربران، اقدامي فوق العاده توسط معمار پروژه بوده است.












