استوديوي معماري و برنامه ريزي شهري STL Architects طرحي مفهومي براي موزه شهرسازي و معماري کره جنوبي در Sejong کره جنوبي اجرا کرده است.

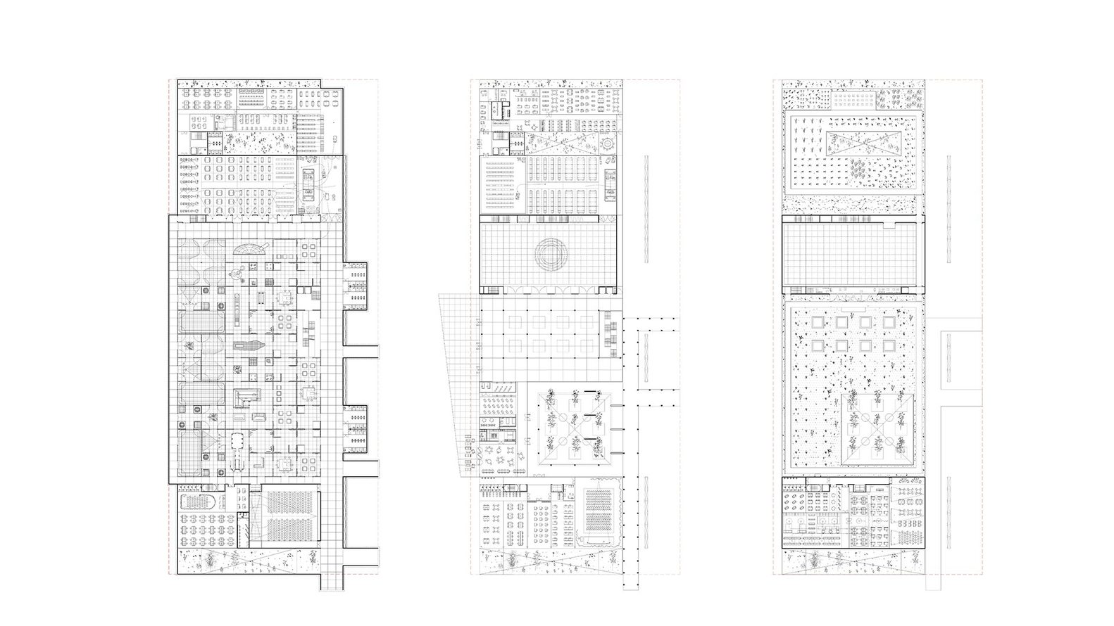
به گزارش گالري آنلاين، رويکرد مينيماليستي اين تيم شامل فضاي داخلي باز و فراخ و حجم هاي ساختماني خطي است که در طرح اصلي مجموعه موزه ملي قرار دارد. هدف از اين طرح، مروري دوباره بر ايده اکولوژي انساني با بررسي راه هاي تقويت رابطه ميان انسانها و محيطهاي طبيعي، اجتماعي و ساخته شده است.
اين طرح در دنيايي که بيش از پيش از طبيعت و بارها از يکديگر جدا شده است، براي شناخت شرايط حاد تر مشکلات اجتماعي، بحران آب و هوا و پاندمي جهاني آماده شده است. بنابر گفته STL، "اين نشاندهنده فرصتي حياتي و بي نظيري است که در آن ساختمانهاي ما مي توانند بعنوان عواملي موثر به ما کمک کنند تا در رابطه خود با طبيعت، محيط ساخته شده و با يکديگر تجديد نظر کنيم."
پروژه موزه جديد شهرسازي و معماري کره با هدف قوت بخشيدن به رابطه بين بازديد کنندگان موزه و محيط هاي طبيعي، اجتماعي و محيط هاي ساخته شده که جزئي از موزه هستند، آماده شده است.
پروژه KMUA توسط تيم طراحي با طراحي هدفمند خود در پيچيده ساختن تشخيص نقطه پايان فضاي معماري و نقطه شروع محيط طبيعي و همچنين محو كردن خطوط بين فضاي داخلي و خارجي که تداوم بصري و فيزيكي موزه با بخش هاي ديگر مجموعه موزه ملي را ممکن ميسازد، براي ايجاد گفتگويي ميان اين محيط ها ارائه شده است.


















