با خالي ماندن کارخانه هاي شهري، بسياري از توسعه دهندگان با بهره گيري از فضاي وسيع، نور و انعطاف پذيري آن ها باعث احياي بسياري از تاسيسات بلااستفاده در جهان و تبديل آن ها به فضاي مسکوني شده اند.

به گزارش گالري آنلاين، خروج تدريجي کارخانه ها از شهرها، به دليل مقررات زيست محيطي، دستورالعمل هاي مربوط به ايجاد مزاحمت هاي صوتي و قيمت املاک و مستغلات، باعث متروکه شدن و بلا استفاده ماندن بسياري از تأسيسات توليدي شهري شده است. اين اتفاق قبلاً در بسياري از شهرهاي جهان رخ داده است. به عنوان مثال، در نيويورک، بحران اقتصادي دهه 70 منجر به تعطيلي بسياري از کارخانه ها و انبارها در بخشهايي از قبيل SoHo شد.
اين تأسيسات متروکه به زودي به ساختمانهاي مسکوني با اجاره بهاي کم اغلب براي هنرمندان و صنعتگراني که براي کار خود به فضاي وسيع نياز داشتند، تبديل شد. يکي از برجسته ترين آنها Andy Warhol بود، که در کارخانه متروکه کلاه سازي نيويورک ساکن شد و آنجا را که اصطلاحاً و به جا "کارخانه" ناميد، به استوديوي خود تبديل کرد.
پروژه هاي زير نمونه اي از تاسيسات توليدي متروکه در اسپانيا را که به معماري مسکوني معاصر تبديل شده اند نشان مي دهد.
تبديل کارخانه سيمان در بارسلونا به دفتر معماري Taller de Arquitectura
Ricardo Bofill در سال 1973 کارخانه سيماني در بارسلونا را به دفتر معماري Taller de Arquitectura (RBTA و محل سکونت خود سال 1973 تبديل کرد.


تبديل کارخانه کوچک قديمي به آپارتمان مسکوني Sabadell
شرکت معماري Cruz y Ortiz Arquitectos، کارخانه قديمي Planell را که بين سالهاي 1900 تا 1903 ميلادي ساخته شده است با اضافه کردن يک طبقه به مجتمع مسکوني شامل 16 واحد آپارتمان به همراه پارکينگ تبديل کرده است.


بازسازي ساختمان صنعتي و تبديل آن به خانه مسکوني مستقل شخصي توسط Guim Costa Calsamiglia
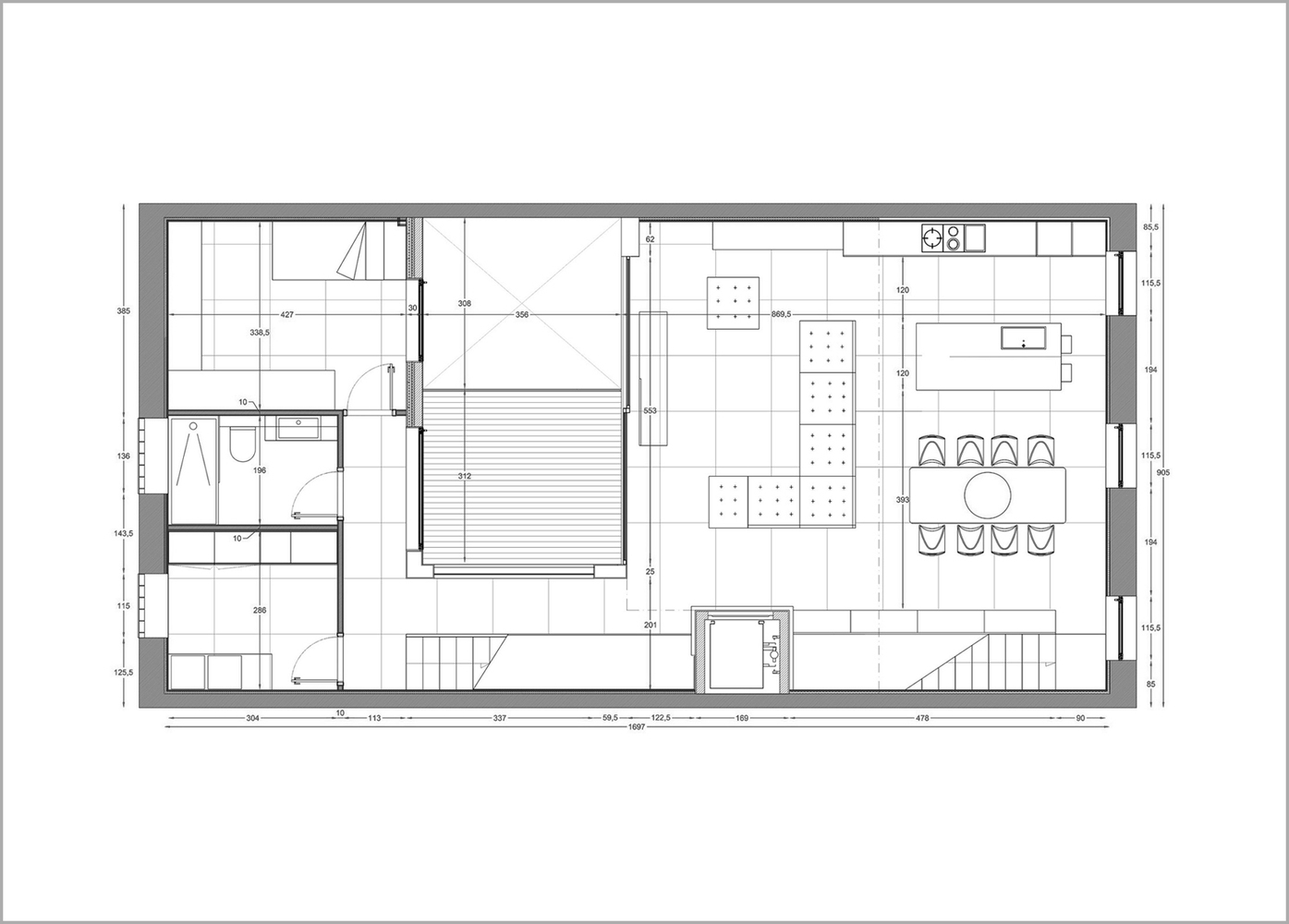
ساختمان قديمي در شهر Tarrega که قرار بود به صورت خانه مسکوني مستقل بازسازي شود. وسعت فضا در اين ساختمان ساده که کارخانه اي قديمي بود غالب است. ساختماني داراي فضاي باز وسيع و بدون ديواره هاي جدا کننده داخلي با ارتفاع 7 متر که در خر پشته شيرواني به 9 متر مي رسد.


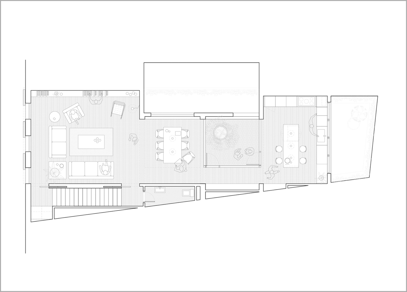
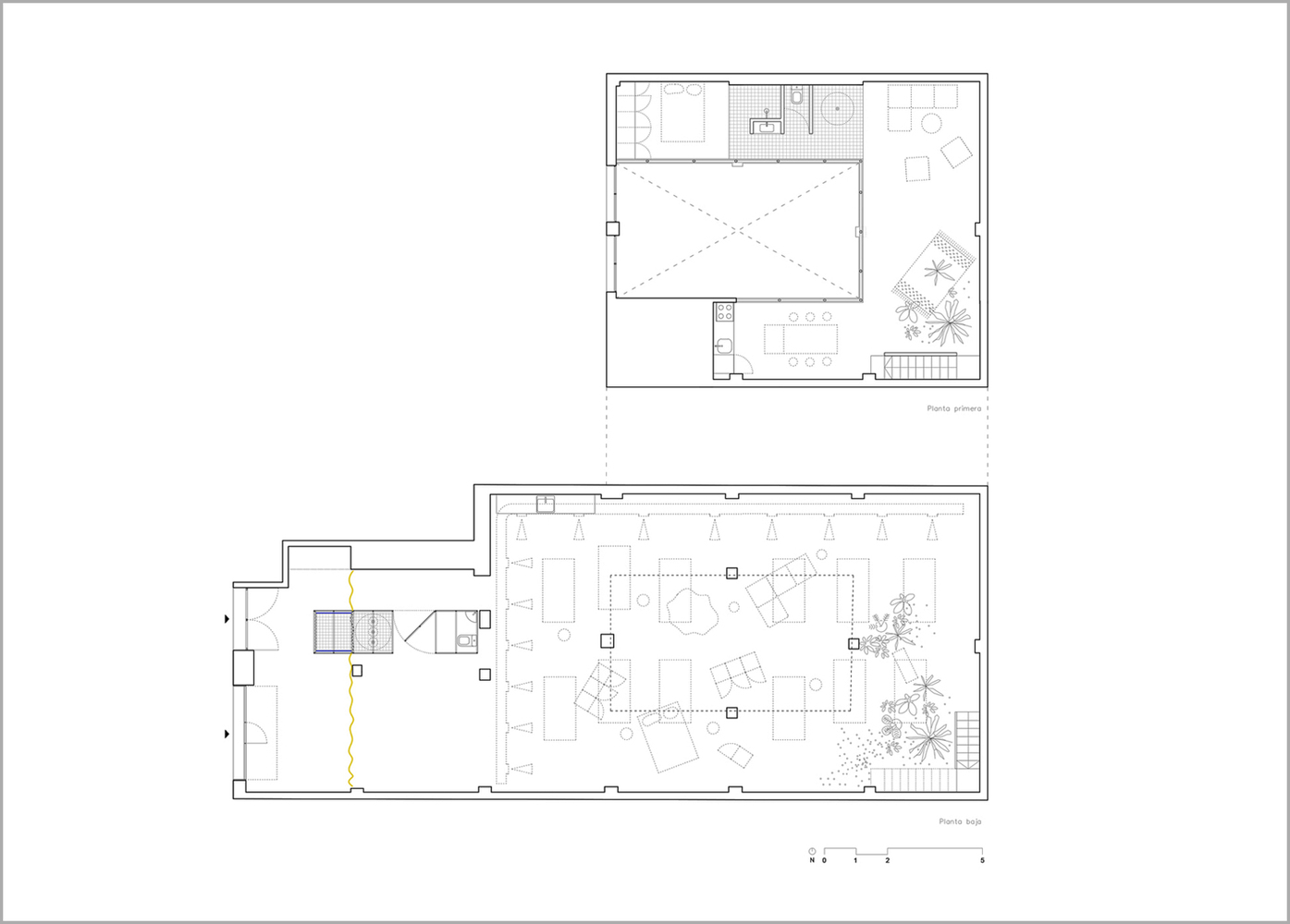
بازسازي خانه اي در منطقه Gràcia شهر بارسلون توسط Sergi Pons
"اين بناي دو طبقه در بين دو ديوار مشترک در منطقه Gràcia شهر بارسلون قرار دارد. بناي اصلي به عنوان انباري در دهه 1960 توسط يکي از اعضاي خانواده يا صاحبان فعلي ساخته شده است. بيشتر ويژگي هاي صنعتي ساختمان در حين مرمت و بازسازي حفظ شده و ديوارهاي اطراف براي محافظت از تجهيزات داخلي ساختمان با تيرهاي آهني تقويت شده اند. هدف از اين پروژه تبديل فضاي سرد و بي روح صنعتي به فضاي گرم و دلچسب مسکوني است.


پروژه Pilarica: عناصر (المان هاي) احياي صنعتي/ Taller de Casquería
پروژه “Pilarica" براي راه اندازي مجدد فضاي صنعتي در بافت شهري مادريد طراحي شده است. هدف از اين پروژه محافظت از ميراث صنعتي شهر با استفاده از اصول اننتفاع و تصرف است که باعث افزايش طول عمر مفيد آن شده و از نابودي اين مکان جلوگيري مي کند.


